
Agra: लोहामंडी-बोदला रोड छह दिन रहेगा बंद
– फोटो : अमर उजाला
विस्तार
उत्तर प्रदेश के आगरा में सीवर लाइन की सफाई के लिए लोहामंडी-बोदला रोड 14 जनवरी से छह दिन के लिए बंद रहेगा। रूट डायवर्ट किया जाएगा। लोहामंडी से बोदला रोड पर शांति सिनेमा के पास सड़क मार्ग को बंद किया जाएगा। यातायात व्यवस्था के लिए यातायात पुलिस की तैनाती भी की जाएगी। इससे लोहामंडी, बोदला, आवास विकास कॉलोनी, शाहगंज के करीब दो लाख लोग प्रभावित होंगे।
जल निगम के अधिशासी अभियंता स्वतंत्र कुमार सिंह ने बताया कि पश्चिमी परिक्षेत्र में लोहामंडी-बोदला मार्ग पर भीम नगर, शांति सिनेमा के निकट चोक सीवर लाइन की सफाई के लिए करीब 30 मीटर की सड़क को काटी जाएगी। इस कारण 14 जनवरी की सुबह 10 बजे से इस मार्ग से वाहनों का आवागमन रोक दिया जाएगा।
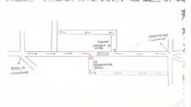
सेक्टर-8 से होकर निकलेंगे वाहन
लोहामंडी से बोदला आने वाले वाहन थाना शाहगंज के रास्ते से होकर आवास विकास कॉलोनी सेक्टर-8 होकर बोदला तक जाएंगे। इसी तरह बोदला से लोहामंडी जाने वाले वाहन आंबेडकर पार्क होते हुए जयपुर हाउस से होकर लोहामंडी पहुंचेंगे।
ऐसे में लोगों को तीन से चार किलोमीटर लंबा चक्कर काटकर गुजरना होगा। वहीं लोहामंडी चौैराहे से आने वाले लोगों को भी परेशानी का सामना करना पड़ेगा। इस दौरान लोहामंडी बोदला रूट पर चलने वाले ऑटो व अन्य वाहन भी वैकल्पिक मार्गों से होकर गुजरेंगे।
