
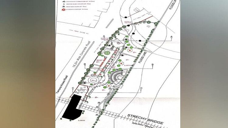
हाथीघाट और बल्केश्वर पर प्रस्तावित मिनी रिवरफ्रंट
– फोटो : अमर उजाला
विस्तार
उत्तर प्रदेश के आगरा में यमुना किनारे पर नगर निगम हाथीघाट और बल्केश्वर पर मिनी रिवरफ्रंट बनाने वाला है। बुधवार को हाथीघाट पर स्ट्रेची ब्रिज से लेकर नए पुल के बीच लैंड स्केपिंग और पार्क का काम शुरू कराया जाएगा। बल्केश्वर घाट पर 400 मीटर का नया घाट बनाया जाएगा।
नगर आयुक्त अंकित खंडेलवाल ने बताया कि नगर निगम यमुना आरती स्थल पर सुंदरीकरण के बाद हाथीघाट से लेकर यमुना व्यू प्वाइंट तक हरियाली और लैंड स्केपिंग का काम कराएगा। इसमें कच्चे पाथवे और लाइटिंग कराई जाएगी और 12 प्रजातियों के पौधे लगाए जाएंगे। बुधवार को लैंड स्केपिंग और पार्क के काम को शुरू कराया जाएगा।
यमुना नदी की तलहटी और किनारों की सफाई के लिए नगर निगम पहले ही 30 सफाई कर्मचारी लगा चुका है, जो नियमित सफाई कर रहे हैं। उन्होंने बताया कि यमुना नदी के किनारे हाथीघाट के साथ बल्केश्वर पर नये घाट का निर्माण किया जाएगा। यहां 400 मीटर का घाट तैयार किया जाएगा।
पाथवे, स्ट्रीट फर्नीचर, टायलेट और लाइटिंग होगी
नगर आयुक्त अंकित खंडेलवाल ने बताया कि यमुना किनारे घाटों पर पौधारोपण किया जाएगा। हरियाली विकसित की जाएगी। डूब क्षेत्र और सुप्रीम कोर्ट की गाइड लाइन का पालन करते हुए हैं पाथे वे, लोगों के लिए स्ट्रीट फर्नीचर आदि की व्यवस्था होगी। उपयुक्त स्थल पर टायलेट की व्यवस्था दी जाएगी। इसके साथ विद्युत सजावट की जाएगी।
